Home
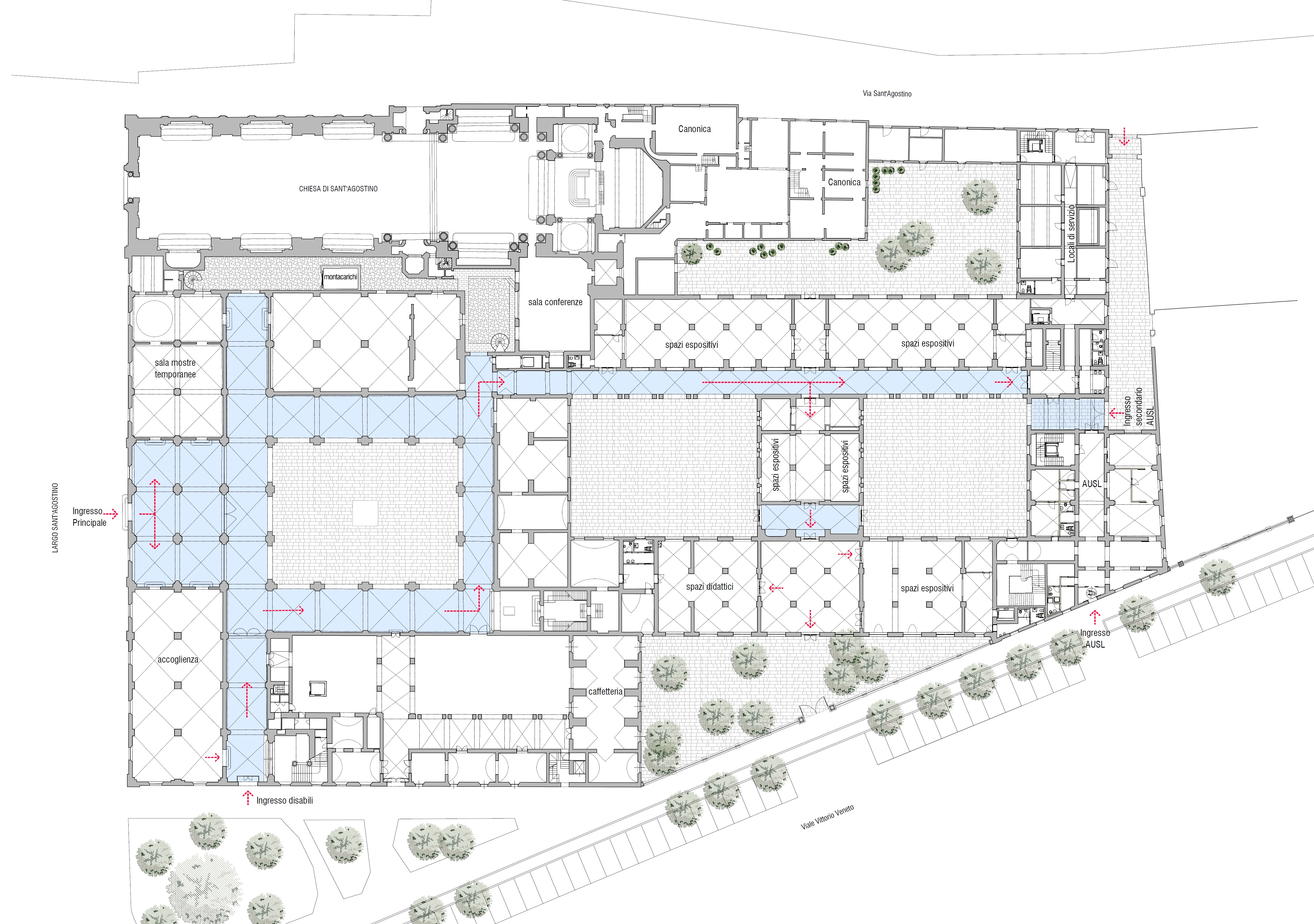
Palazzo dei Musei - ex Ospedale Estense, planimetria piano terra