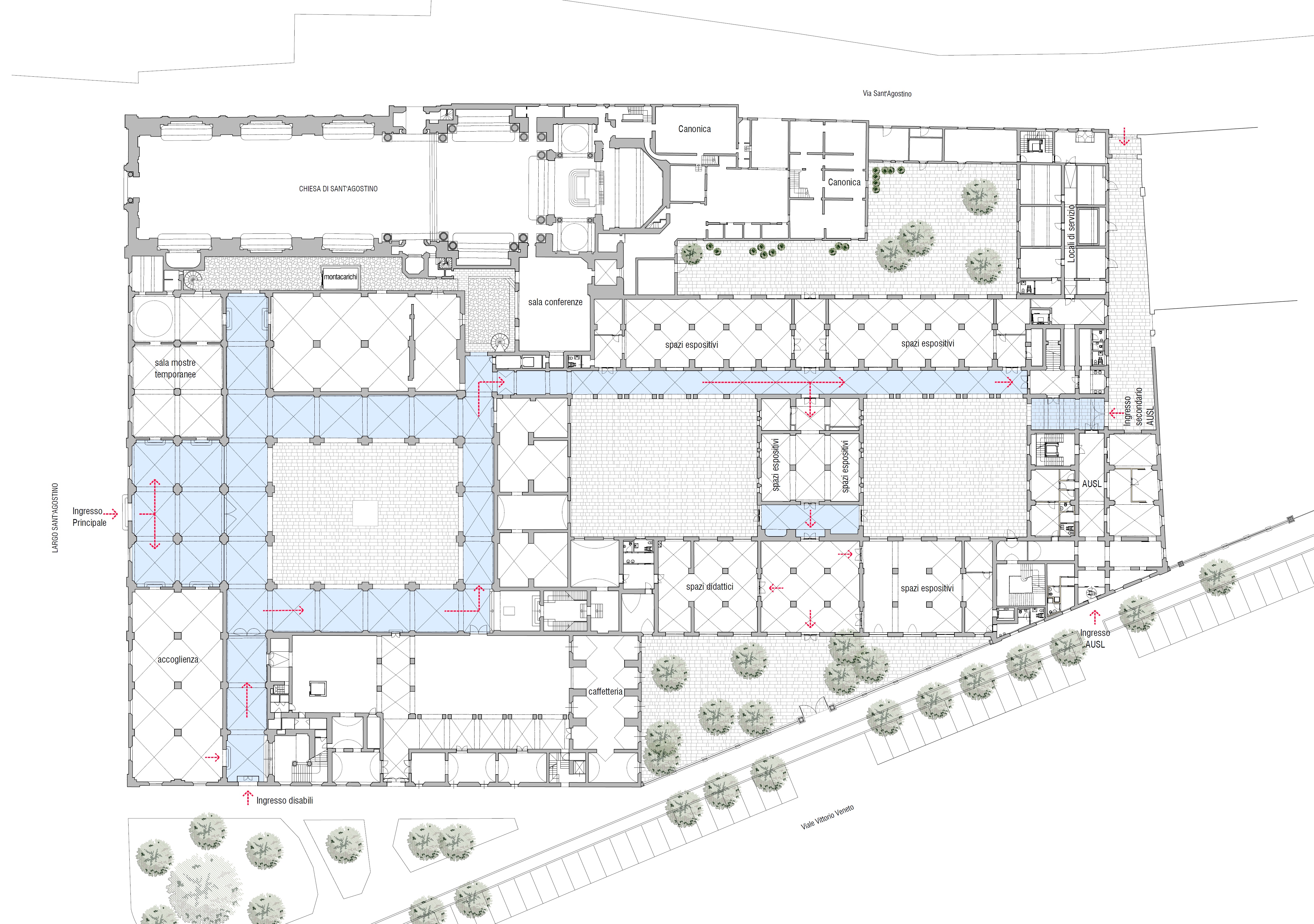
Al piano terra dell’ex Ospedale Estense di Modena, con accesso diretto dal cortile del Palazzo dei Musei attraverso un passaggio tra i porticati e anche da via Sant’Agostino, verranno realizzati quasi mille metri quadrati di spazi espositivi per le mostre temporanee. E’ uno degli elementi principali dell’intervento sull’edificio, insieme all’impiantistica, al consolidamento strutturale e al miglioramento sismico dell’intero fabbricato, previsto nel progetto esecutivo approvato nei giorni scorsi dalla Giunta comunale.
Il progetto prevede anche la realizzazione di uno spazio di accoglienza comune di tutti gli istituti culturali all’ingresso principale del Palazzo dei Musei su piazza Sant’Agostino, di locali di servizio e di un’area a sud-ovest dedicata ai laboratori dell’Azienda sanitaria che, con accesso dedicato da viale Vittorio Veneto, rimangono nel palazzo che un tempo ospitava l’ospedale Estense e che, a parte l’area riservata alla sanità, assume ora una prevalente destinazione ad attività culturali, accogliendo l’ampliamento degli istituti culturali nell’ambito del progetto del Polo Sant’Agostino-Palazzo dei Musei illustrato nei mesi scorsi in Consiglio comunale.
Il progetto esecutivo, il cui sviluppo è stato finanziato dalla Fondazione Cassa di Risparmio di Modena, definisce gli interventi per la riqualificazione del complesso edilizio di Palazzo dei Musei e dell’ex Ospedale Estense e identifica il primo stralcio di lavori, funzionalmente autonomo, in relazione al finanziamento di 17 milioni di euro ottenuto dal ministero dei Beni culturali con il progetto “Ducato Estense”.
Il progetto esecutivo del complesso Palazzo dei Musei-ex Ospedale Estense, che consente di dare il via alle procedure di gara per l’assegnazione dei lavori, è stato presentato alla stampa nella giornata oggi, lunedì 27 novembre, dal sindaco Gian Carlo Muzzarelli, dal presidente della Fondazione Cassa di Risparmio di Modena Paolo Cavicchioli e dai tecnici comunali del settore Lavori pubblici. I progetti preliminari ed esecutivi hanno ottenuto il parere favorevole della Soprintendenza con alcune prescrizioni che sono state recepite nel documento approvato.
Gli interventi previsti riguardano in particolar modo l’ex Ospedale Estense: il Palazzo dei Musei infatti è stato oggetto di lavori di consolidamento sismico, attualmente in corso e che termineranno entro l’anno, mentre all’ex ospedale, negli anni, sono stati effettuati soltanto limitate opere di adeguamento funzionale di alcuni spazi secondari.
Entro fine anno, per un importo di 350 mila euro, verrà pubblicata la gara per assegnare lavori propedeutici all’intervento complessivo, in particolare volti ad adeguare la struttura per consentire la compresenza del cantiere con i servizi dell’Ausl, che rimarranno attivi per tutto il periodo. Contestualmente ai lavori provvisionali, della durata di circa tre mesi, verrà indetta la gara a offerta economicamente più vantaggiosa per l’intervento di recupero dell’edificio, con una base di gara di 13 milioni 700 mila euro. L’avvio dei lavori, che avranno una durata di circa due anni e mezzo, è previsto entro la fine dell’estate e, nella prima fase, l’intervento si concentrerà nell’area destinata agli spazi dell’Ausl, per consentire il successivo trasferimento delle attività, una volta che l’Azienda sanitaria avrà provveduto alle opere di finitura.
Il finanziamento ministeriale di 17 milioni di euro coprirà anche le spese accessorie tra cui gli arredi, le spese per servizi per l’accoglienza, la fruizione e la gestione di funzioni e attività rivolte all’utenza, e le spese per la comunicazione e promozione.
Oltre al progetto preliminare e a quello definitivo/esecutivo, la Fondazione Cassa di Risparmio di Modena ha finanziato anche i rilievi e le indagini finalizzati alla progettazione. La Fondazione, inoltre, sempre in partenariato con il Comune, si è occupata di tutte le procedure per l’affidamento dei lavori di progettazione. Per tutte queste attività la Fondazione ha stanziato 800 mila euro (comprensivi di Iva).
Con il progetto “Ducato Estense” il ministero ha finanziato anche la riqualificazione del Castello di Sestola per 2 milioni 306 mila e 980 euro (progetto esecutivo già approvato) e il restauro della facciata principale di Palazzo Ducale su piazza Roma e per la valorizzazione dell’Osservatorio geofisico (500 mila euro, progetto in corso di definizione da parte del Comune in collaborazione con le strutture tecniche dell’Accademia militare).
Azioni sul documento
