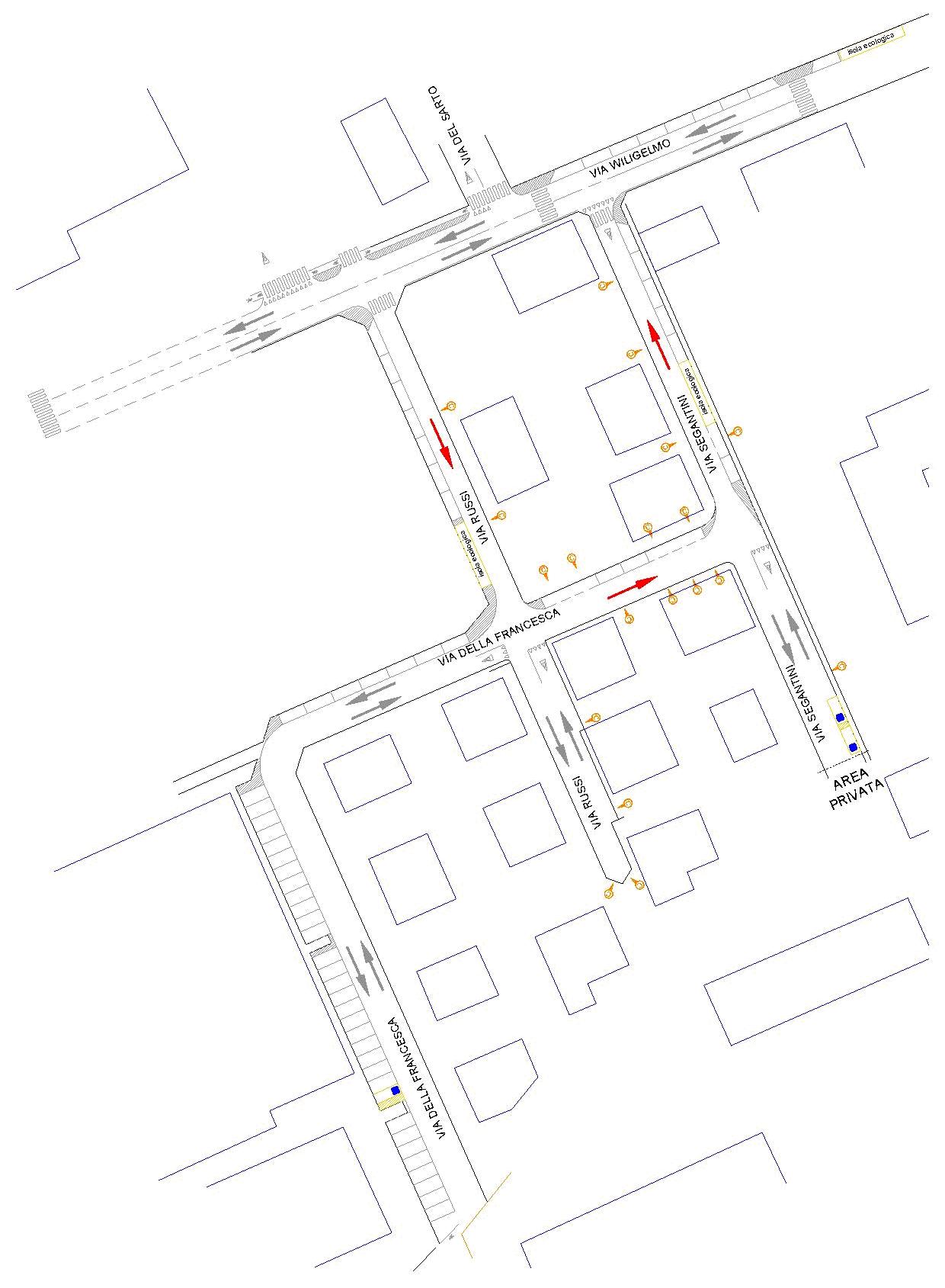
Il comparto residenziale delle vie Russi, Segantini e Piero Della Francesca diventa Zona 30, in alcuni tratti verrà introdotto il senso unico, sarà ripresa e migliorata la segnaletica, verranno risagomate le strade e le isole di conferimento rifiuti e saranno delineati gli spazi di sosta.
L’intervento, che ha l’obiettivo di aumentare la sicurezza nella zona e toccherà anche via Wiligelmo, prenderà il via lunedì 6 marzo, avrà una durata di massimo tre giorni e richiederà divieti di sosta in tutte le strade interessate con restringimenti e, solo in caso di necessità, chiusura temporanea nel tratto in cui si lavora.
“L’istituzione nel comparto di una nuova Zona 30 – afferma l’assessore alla Mobilità Gabriele Giacobazzi –, rientra nelle previsioni del Piano della Mobilità Ciclabile recentemente approvato dal Consiglio comunale, che si è dato come obiettivo nel tempo quello di trasformare tutte le zone residenziali in cui ci sono adeguate caratteristiche in aree con velocità massima consentita di 30 chilometri orari. Questo per consentire il transito in promiscuo in sicurezza della mobilità dolce e di veicoli a motore. L’intenzione – prosegue – è quella di creare una maglia principale di strade con traffico di medio/lungo raggio e, all’interno, isole di traffico prevalentemente locale, disincentivando il transito per chi non è del comparto e riducendo il differenziale di velocità tra i vari mezzi. Nell’area delle vie Russi, Segantini e Piero Della Francesca, in particolare, l’intervento consentirà di recuperare spazi congrui per parcheggi e cassonetti, rendendoli compatibili con la circolazione ordinata di chi transita nell’area, non solo residenti, e dei mezzi di servizio”.
In particolare, tratti non a fondo cieco delle vie Russi, Piero Della Francesca e Segantini diventeranno a senso unico, con circolazione in senso antiorario: via Russi sarà percorribile da via Wiligelmo verso via Piero Della Francesca, via Piero Della Francesca da via Russi verso via Segantini e via Segantini da via Piero Della Francesca verso via Wiligelmo. Verranno tracciati stalli di sosta in linea e ridefinite le isole di conferimento rifiuti in allineamento ai primi. Nel tratto di strada chiusa in via Piero Della Francesca verranno tracciati stalli di sosta a pettine sul lato della Polisportiva San Faustino, in modo da garantire una fruizione ottimale degli spazi disponibili. Nel tratto di strada chiusa in via Segantini verrà realizzato un ulteriore stallo di sosta riservato alle persone con difficoltà motorie.
Anche via Wiligelmo sarà interessata dall’intervento: nel tratto compreso tra il civico 31 e il civico 81, verrà ripristinata la segnaletica orizzontale; sarà adeguata la segnaletica alle intersezioni con via Russi e via Segantini, e istituito il divieto di sosta e fermata nel tratto compreso tra i due incroci; verrà realizzato un nuovo attraversamento pedonale dotato di dispositivi rifrangenti annegati nell’asfalto al fine di aumentarne la visibilità; analoghi dispositivi verranno posati anche presso l’altro attraversamento pedonale di collegamento con l’isola di conferimento rifiuti. Sul lato nord, nel tratto compreso tra l’intersezione con via Segantini e la zona dell’isola ecologica, verranno tracciati stalli di sosta in linea, mentre nel tratto compreso tra via Del Sarto e via Russi verrà tracciato un percorso pedonale. Si procederà infine all’aggiornamento della segnaletica presente, in base alle norme vigenti.
Galleria immagini
Azioni sul documento
