Salta ai contenuti.
|
Salta alla navigazione
Comune di Modena
Espandi barra di navigazione
.
Visit
Modena
Tu sei qui:
Home
/
Archivio Stampa
/
Archivio Comunicati Stampa
/
2017
/
Novembre
/
AL VIA IL PROGETTO DI RECUPERO DELL’EX OSPEDALE ESTENSE
/
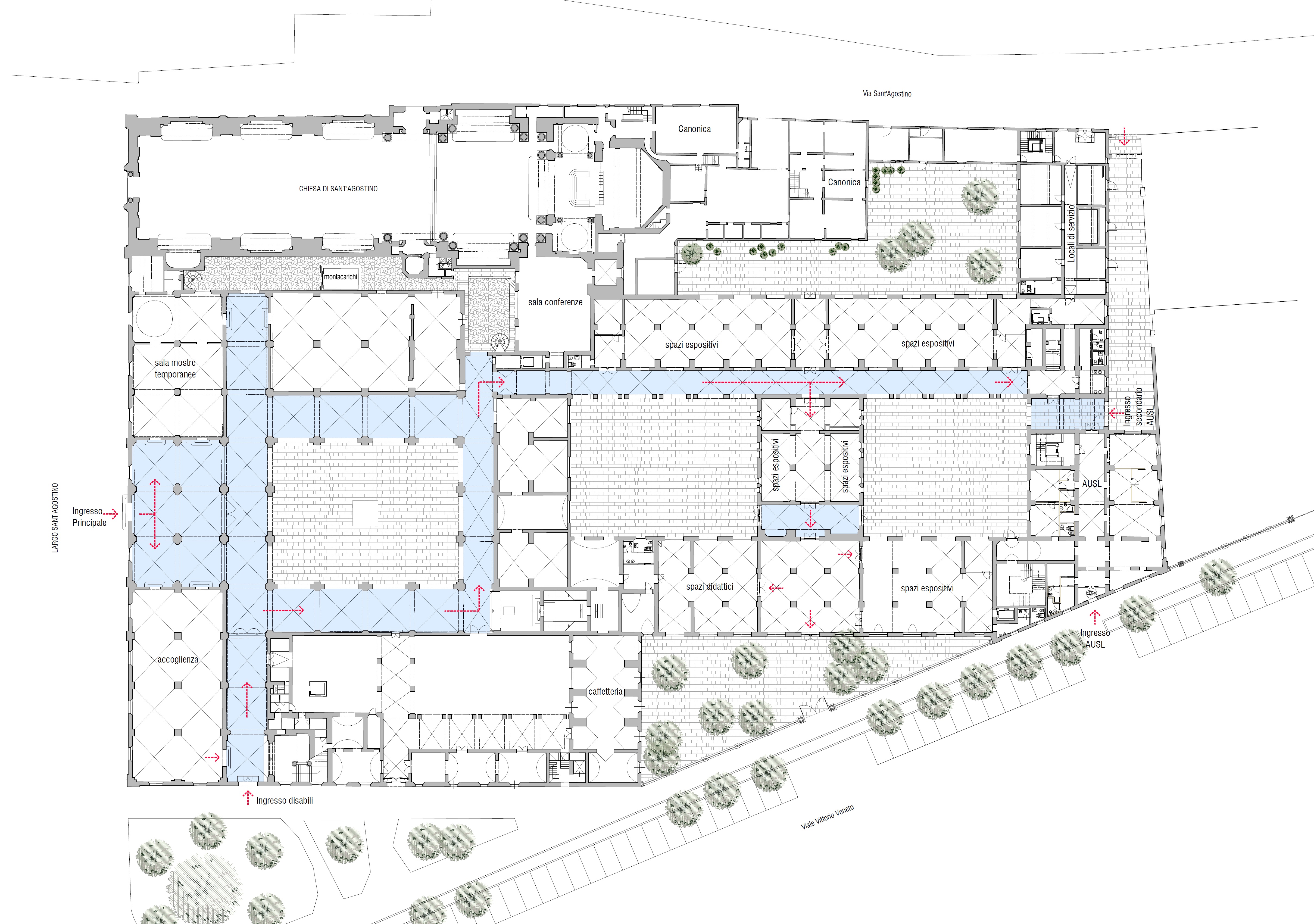
Palazzo dei Musei - ex Ospedale Estense, planimetria piano terra
Archivio Stampa
Salta ai contenuti.
|
Salta alla navigazione
Palazzo dei Musei - ex Ospedale Estense, planimetria piano terra
Info
Dimensione immagine:
2.98 MB
|
Visualizza
Scarica
Azioni sul documento
Stampa
Ricerca avanzata
Archivio Comunicati stampa
Comunicati dal 2024